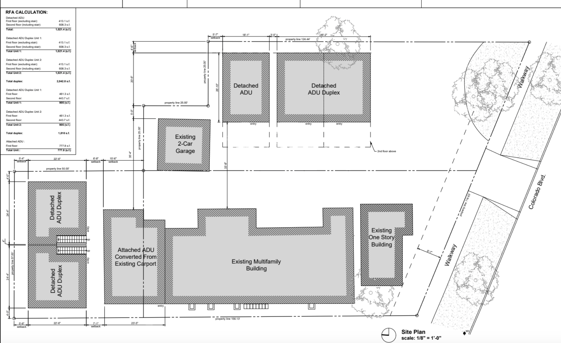
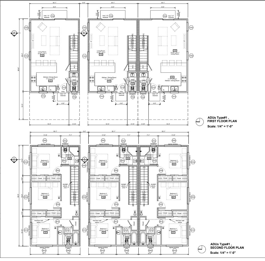
1515 Colorado - 8 unit Infill Development

In conjuction with West End Development Partners, 1515 Colorado consists of adding eight new units to an existing seven unit property. The unit mix is comprised of seven two-story detached ADUs and one carport ADU conversion. The existing seven unit building will also receive a face lift.

Previous
Previous

50-Unit Flood Damage Reconstruction

Next
Next

Radford Fire Burned Reconstruction